6633:新築戸建 豊明市前後町仙人塚 第1 クレイドルガーデン 1号棟
| 価格 | 3,390万円 |
|---|---|
| 所在地 | 豊明市前後町仙人塚 |
| 最寄駅 | 名鉄本線「前後」駅まで 徒歩11分 880m |
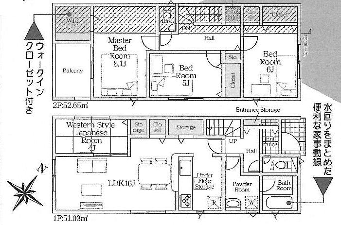
| 間取 | 4LDK+ウォークインクローゼット |
| 土地面積 | 137.24m²(41.51坪) |
| 建物面積 | 103.68m²(31.36坪) |
| 私道面積 | - |
| 築年月 | 2026/03 |
| 学区 | 小学校区:大宮小学校 640m 中学校区:豊明中学校 1,760m |
| 建物構造 | 木造 |
|---|---|
| 階建 | 地上2階建 |
| 建ぺい率 | 60% |
| 容積率 | 100% |
| 地目 | 宅地 |
| 用途地域 | 第一種低層住居専用地域 |
| 土地権利 | 所有権 |
| 取引態様 | 仲介 |
| 引渡時期 | 2026年03月下旬 |
| セットバック | 無 |
|---|---|
| 接道 | 北東 5m(幅員) 公道 9.1m(接面) |
| 諸費用 | 売買代金の10%程度 |
| 他法条例 | 宅地造成等規制法・建基法22条指定区域 |
| 建築確認番号 | 第HPA26-00071-1号 |
| 取引条件有効期限 | 令和08年2月6日 |
特色
【教育】☆市立西部保育園 徒歩13分 ☆大宮小学校 徒歩8分 ☆豊明中学校 徒歩22分 【買い物】☆コープあいち とよあけ 徒歩9分 ☆ファミリーマート前後駅北店 徒歩10分 ☆スギ薬局前後店(24時間営業) 徒歩4分 【病院】☆渡辺歯科 徒歩7分 ☆すぎうら内科クリニック・田代耳鼻咽喉科 徒歩9分 ☆前後整形外科内科クリニック 徒歩11分 【その他】☆碧海信用金庫豊明市店 徒歩6分
コメント
☆ZEH基準相当の省エネ住宅☆耐震等級3(最高等級) ☆耐風等級2 ☆一次エネルギー消費量等級6 ☆ホルムアルデヒド発散等級3(内装・天井裏等) ☆維持管理対策等級3 ☆劣化対策等級3 ☆設計住宅性能評価書取得物件 ☆建物10年保証 ☆制震装置設置住宅です。「SAFE365」というメンテナンスが必要ない制振装置が付いています。☆フラット35S 技術基準適合住宅
☆第三者機関が評価する等級なので、一般の方にも住宅の性能が分かりやすく安心です。
【住宅性能表示制度とは、構造の安定、火災時の安全、高齢者等への配慮など共通に定められた方法で第三者機関が住宅の性能について評価をすること。住宅取得者に対して住宅の性能に関する信頼性の高い情報を提供する仕組みです。】☆制震装置設置住宅です。「SAFE365」というメンテナンスが必要ない制振装置が付いています。
☆仕様:システムキッチン・ユニットバス(換気暖房乾燥機付)・シャワードレッサー・シャワートイレ・人感センサー付玄関灯・TVモニター付きインターホン・全居室ペアガラス・防犯カメラ。 ※TVアンテナ・網戸・照明・カーテンレールなどはオプションとなります。
※新築の分譲住宅は、5割超が完成前に成約します。同じ会社が建てた近隣の完成現場をご案内できます。同じ間取りの完成現場はございませんが、質感や設備などの仕様、居室の広さなど、体感していただけます。資金計画や住宅ローンの事前審査もお任せください。●ライフラインは、上下水道・都市ガス・電気になります。 絶対高さ制限10m
☆ウォークインクローゼット含め、各居室に収納あり ☆LDKに、調味料や調理器具を収納できる所があり便利です。 ☆2台駐車可能(車種による)
☆名鉄本線「前後」駅まで徒歩11分の立地です。 ☆国道1号線が近く、車では名古屋市緑区にもすぐ行くことができ、国道23号線や伊勢湾岸道路へもアクセスが良いです。
【近隣に住んでいるスタッフから一言】
☆閑静な住宅街です。 ☆スーパーや病院、大宮小学校も徒歩圏内です。 ☆徒歩4分のスギ薬局前後店24時間営業なので助かります。スギ薬局前後店の調剤時間は、こちらから。
【ハザードマップ情報】
水防法に基づいた豊明市公表の『水害・土砂ハザードマップ』と『豊明市防災マップ』を見ると、
●東海豪雨などの100年に1度程度の大雨(24時間総雨量411mm)で外水氾濫と内水氾濫が同時に発生した場合に想定される浸水深は【対象となる区域外】。
●名古屋市の年間降水量約1550mmの約半年分の雨量が24時間で降った計算になる1000年に1度程度の大雨(24時間総雨量760mm)で外水氾濫と内水氾濫が同時に発生した場合に想定される浸水深は【対象となる区域外】。
●南海トラフ巨大地震による予想震度は【震度6弱】。
●液状化の可能性は【可能性 ない】となっています。
豊明市役所によると、「あくまで想定図であり、個々の地域・場所を厳密に調査した結果ではない」 とのことなので、目安としてお考えください。 詳しくは、豊明市のホームページもご覧いただけますと幸いです。
☆2号棟はこちら
周辺地図
位置情報に関するご注意:現在位置情報は精査中の為、正確ではない場合があります。あくまで参考程度の情報となります。






















